Двухстоечный подъемник увеличенной высоты (4010 мм) и с верхней синхронизацией стальным тросом KraftWell применяется в автосервисах, автомастерских и на СТО для поднятия и удержания на высоте автомобилей массой до 4000 кг для проведения технического обслуживания, ремонтных, диагностических и прочих работ.
Подробности
В корзину
Купить в 1 клик
Рассчитать доставку
Особенности:
- за подъем транспортного средства отвечают два надежных гидравлических цилиндра с цепным приводом каретки, что уменьшает нагрузку на гидроцилиндры и обеспечивает долговечность их работы;
- ассиметричные двух- и трехсекционные лапы регулируются по длине в диапазонах 730-1460 / 725-1125 мм и механически блокируются от поворота;
- каретки с расположением поворотных лап внутри снабжены нейлоновыми ползунами, которые обеспечивают плавное перемещение внутри стоек;
- механические предохранительные стопоры-защелки, снятие со стопоров осуществляется на одной стойке;
- для предотвращения соприкосновения крыши автомобиля с верхней балкой при подъеме предусмотрен ИК-датчик;
- имеются перепускной клапан перегрузки, аварийный клапан опускания и механическое устройство контроля натяжения троса;
- входящие в комплектацию регулируемые резьбовые подхваты, проставки высотой 100 мм, а также скользящие адаптеры на лапах обеспечивают широкий диапазон обслуживаемых автомобилей;
- резиновые накладки на каретку оберегают двери автомобиля от повреждения;
- в комплекте анкерные болты М18х160 мм (10 шт);
- данная модификация подъемника питается от электросети 380 В.
Сертификаты
Комплект поставки
изделие в упаковках 2840/480/700 + 800/240/330 мм
Документы
kraftwell_sertifikat_2018
101,2 кб
Товары комплекта
[]
Производитель
KraftWell
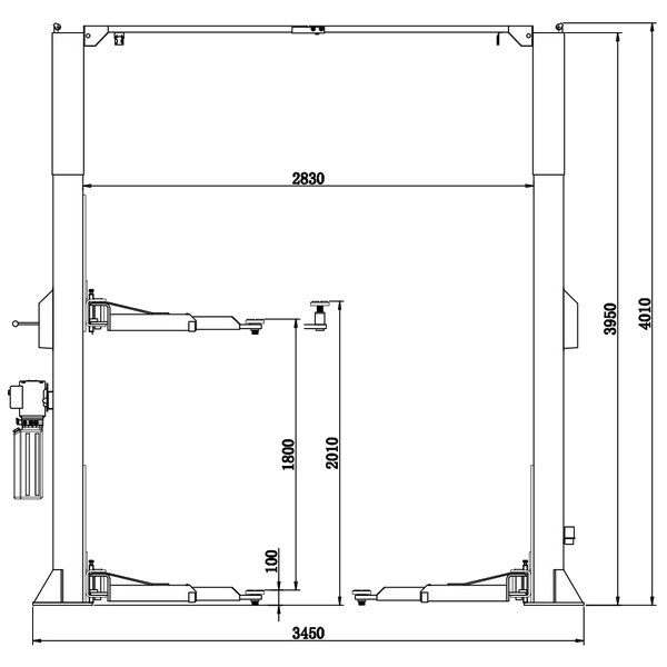
Габариты, мм
3450х4010
Масса, кг
630
Цвет
серый
Электропитание, В
380
Грузоподъемность, т
4
Высота подхвата, мм
100
Высота подъема, мм
2010
Время подъема, сек
50
Ширина стоек, мм
2830
Время спуска, сек
50
Тип синхронизации
верхняя
Управление стопорами
на 1-й колонне
Комплект поставки
изделие в упаковках 2840/480/700 + 800/240/330 мм
Отзывы
Оставить отзыв
Загрузка отзывов...
Наличие
Похожие товары