Покрасочная (окрасочно) сушильная камера NORDBERG ECONOMIC является упрощённым вариантом камеры NORDBERG STANDART и также предназначена для полной окраски автомобилей или отдельных элементов кузова и любых деталей.
В качестве теплового генератора используется оригинальная дизельная горелка производства итальянской фирмы Riello.
Высокое качество лакокрасочного покрытия, полученного при покраске в окрасочной камере NORDBERG ECONOMIC, гарантирует эффективная система вентиляции, исключающая возможность турбулентности или попадания внутрь камеры внешней пыли.
Отличительной особенностью камеры является высокая экономичность - во время цикла сушки до 90% горячего воздуха, прошедшего через вытяжку, поступает обратно в окрасочную камеру, что позволяет существенно экономить энергозатраты и увеличивает скорость высыхания нанесенного лакокрасочного покрытия.
Стеновые панели камеры окрашены высококачественной порошковой краской и идеально подогнаны друг к другу, торцы панелей полностью закрыты ребрами жесткости. Все панели при транспортировке защищены специальной пленкой, которая легко удаляется после монтажа, что обеспечивает камере отличную сохранность внешнего вида.
Потолочные светильники, закрытые закаленными взрывобезопасными стеклами прямоугольной формы, размещены в в сэндвич-панелях и создают ровный свет, близкий по своим характеристикам к полуденному свету солнца. Нижние (панельные) светильники конструкцией не предусмотрены.
Основание камеры изготовлено из оцинкованных стальных профилей, усиленных ребрами жесткости, что позволяет устанавливать камеру на ровное бетонное основание и обеспечивает ее эксплуатацию при нагрузке 600 кг на отпечаток колеса. По желанию возможна установка камеры в бетонный приямок.
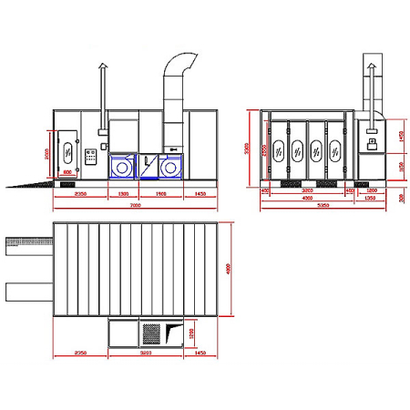
предварительный фильтр
потолочный фильтр
напольный фильтр
экстракторный фильтр
поставляется в разобранном виде
|
шиберная заслонка
?
|
|
заслонка рецеркуляции
?
|
|
противопожарный датчик
?
|
предварительный фильтр
потолочный фильтр
напольный фильтр
экстракторный фильтр
поставляется в разобранном виде
для управления давлением
,для экономии топлива в режиме сушки
,для автоматического отключения горелки в случае превышения температуры