Окрасочно-сушильная камера Guangli предназначена для профессионального нанесения на кузова легкового автотранспорта и отдельных деталей слоя грунтовки, лакокрасочных составов, их высыхания, полировки и иных видов работ. Устанавливается в автосервисах, на станциях кузовного ремонта, производственных предприятиях и т.д.
Металлическое основание камеры и группы притока имеют высоту 30 см – монтаж камеры производится на ровный пол (для заезда автомобиля используются трапы) или в приямок. Напольные решетки внутри камеры выдерживает нагрузку до 600 кг на одно колесо.
Корпус камеры представляет собой сборную конструкцию из сэндвич-панелей толщиной 50 мм, изготовленных из оцинкованной листовой стали с покрытием полимерной антибликовой краской и с утеплением пенополистиролом, который обладает высокими теплоизоляционными свойствами и соответствует всем требованиям пожарной безопасности.
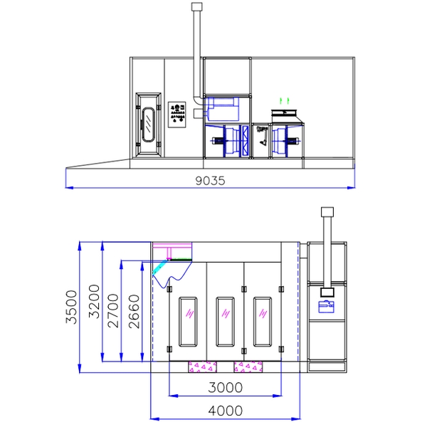
Внутренние размеры камеры (ДхШхВ) – 6,9х3,9х2,7 м, наружные размеры (ДхШхВ) – 7,0х5,3х3,5 м.
Трехстворчатая фронтальная дверь имеет размеры (ШхВ) 3,0х2,7 м, боковая аварийная дверь оборудована замком «Антипаника».
Дизельная горелка Riello G20 итальянского производства обладает мощностью 202 кВт. Продуманная конструкция теплообменника из жаростойкой нержавеющей стали максимально отдает тепло от энергоносителя – 90 % нагретого воздуха подвергается рециркуляции.
Камера оборудована двумя вентиляторами (приточным 7,5 кВт и вытяжным 5,5 кВт), которые позволяют обеспечивать воздухообмен внутри камеры до 24 000 м³/ч, скорость потока воздуха внутри камеры составляет 0.25 м/с. Электродвигатели изготовлены по технологии Siemens, надежны в условиях нестабильных электросетей и установлены в изолированном от окрасочного опыла отсеке. Двигатель и турбина имеют прямое соединение, а свободный доступ к ним облегчает их обслуживание и ремонт.
Заслонка, плавно переключающая режимы окраска/сушка, срабатывает автоматически посредством пневматики. Отличается надежностью и долговечностью.
Система фильтров состоит из потолочного фильтра (степень фильтрации 98 %), напольного фильтра (степень фильтрации 95 %) и фильтра предварительной очистки (степень фильтрации 80 %). Фильтры легко меняются.
Верхнее освещение окрасочно-сушильной камеры состоит из 10 плафонов (каждый плафон – 4 лампы по 18 Вт). Также имеется дополнительное боковое освещение, включающее в себя 8 плафонов (в каждом по 2 лампы мощностью по 18 Вт).
Контроллерная система с максимальной точностью поддерживает рабочие режимы. Система позволяет программировать рабочие режимы для различных типов лакокрасочных материалов по параметрам температуры и времени сушки. Элементы защищены от перегрузки, перегрева и пропадания фазы.
изделие в разобранном виде в упаковках
изделие в разобранном виде в упаковках